OKO.NA...

FUNKCJĘ

Czym jest oferta oko.na..funkcję?

Masz pomysł na wnętrze swojego domu i potrzebujesz tylko, funkcjonalnego rozplanowania?

Decydując się na oko.na…funkcję, otrzumujesz układ funkcjonalny, który posłuży Ci jako inspiracja, lub baza do dalszych modyfikacji.

Co zyskujesz z oko.na…funkcję?

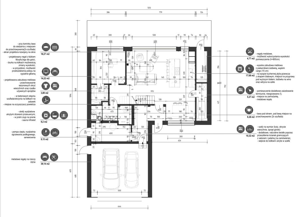
  • 4 układy funkcjonalne do wyboru: Każdy układ zawiera szczegółowe rzuty, które pomogą Ci wyobrazić sobie układ pomieszczeń i funkcjonalne rozmieszczenie mebli.
  • Dokumentacja techniczna: Do wybranego układu funkcjonalnego dołączona jest dokumentacja techniczna, zawierająca:
    • Układ funkcji: Dokładny opis funkcji każdego pomieszczenia, z uwzględnieniem stref i ich przeznaczenia, ustandaryzowanych wymiarów mebli.
    • Wyburzenia ścian: Informacje o ewentualnych wyburzeniach ścian, niezbędnych do realizacji wybranego układu.
    • Punkty hydrauliczne: Rozmieszczenie punktów hydraulicznych, takich jak przyłącza wodno-kanalizacyjne i odpływy.
    • Punkty elektryczne: Rozmieszczenie punktów elektrycznych, uwzględniając gniazdka, włączniki światła i inne elementy instalacji elektrycznej.

Dlaczego warto wybrać oko.na…funkcję?

  • Oszczędź czas i pieniądze: Gotowe układy funkcjonalne i dokumentacja techniczna pomogą Ci zaoszczędzić czas i pieniądze na etapie projektowania wnętrza.
  • Unikaj błędów: rozmieszczenie mebli oraz sanitariaty są ergonomicznie rozmieszczone.
  • Zyskaj inspirację: Gotowe układy funkcjonalne mogą stanowić inspirację do stworzenia własnego, unikatowego projektu wnętrza.
  • Stwórz funkcjonalne wnętrze: Układy funkcjonalne oko.na…funkcje są zaprojektowane z myślą o funkcjonalności i komforcie użytkowania.
Otrzymujesz bazę, do Twojego projektu wnętrza.

uklad-funkcjonalny-oko.na.design

Potrzebujesz oszacować swoje koszty?

WYCENA INDYWIDUALNA