Aż o 90% zwiększasz swoje szanse na szybką realizację wymarzonego wnętrza, z poprawnie zorganizowanym procesem projektowym.
Wybierając polski design, otrzymujesz nie tylko estetyczne i innowacyjne produkty, ale również wspierasz lokalnych twórców.
Pragniesz, żeby Twoje wnętrze odzwierciedlało Twoje indywidualne potrzeby?
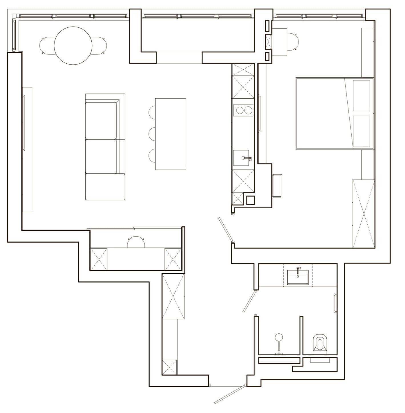
Rozwiązania przestrzenne, aranżacja i styl
Przed przystąpieniem do pracy podpisujemy umowę.
Umowa ta stanowi podstawę mojej odpowiedzialności za jakość wykonanej pracy. Następnie, szczegółowo analizuję Twoje potrzeby, żeby projekt był zgodny z Twoim stylem życia i gustem. Natomiast wiedza techniczna, jaką zdobyłam podczas studiów, gwarantuje Ci, że wnętrze będzie również praktyczne i ergonomiczne.
Zatrudniając mnie masz pewność, że będziemy pracować na wskazanym przez Ciebie budżecie.
Dzięki temu unikniesz niespodziewanych wydatków. Oszczędzasz również czas, bo to ja się zajmę doborem mebli, kolorów, tekstur, które pasują do siebie i tworzą spójną całość. A mając szczegółową dokumentację techniczną, ograniczysz do minimum kosztowne poprawki.
Pomogę Ci stworzyć wnętrze funkcjonalne, dopasowane do Twojego stylu i budżetu w ustalonym terminie
Aż o 90% zwiększasz swoje szanse na szybką realizację wymarzonego wnętrza, z poprawnie zorganizowanym procesem projektowym.
Poznaj świat wnętrz moimi oczami
Stan Surowy Otwarty Stan surowy otwarty to kluczowy etap, w którym dom zaczyna przybierać swoją pełną formę — wznoszone są ściany, montowane stropy, a przestrzeń nabiera rzeczywistego wymiaru. W tym…
Czytaj dalejPapierologia – Nasze Doświadczenia i Praktyczne Wskazówki Uzyskanie pozwolenia na budowę, co, jak się okazało, było nie lada wyzwaniem. Chociaż całą papierkową robotę zostawiliśmy architektowi, po drodze…
Czytaj dalejOdpowiednie usytuowanie domu na działce – na co zwrócić uwagę? Kiedy zaczynasz niełatwą przygodę z budową domu, jednym z kluczowych etapów jest poprawne usadowienie budynku na działce. Choć może…
Czytaj dalejDowiedz się, jak uniknąć niespodzianek na etapie budowy domu! Praktyczne porady, jak czytać dokumenty, dbać o relacje z sąsiadami i chronić swoje rośliny.
Czytaj dalejZakup działki – sprawdź granice, media i instalacje podziemne, aby uniknąć problemów na etapach budowy domu.
Czytaj dalejI czy jest Ci potrzebna projektantka/ projektant wnętrz? W poprzednim wpisie wymieniłam 3 z 5 czynników wpływających koszt budowy domu: Poniżej pozostałe dwa czynniki. Dodatkowo podaję przykładowy koszt…
Czytaj dalejNie od dziś wiadomo, że budowa domu jest kosztownym przedsięwzięciem. W szczególności w ostatnich latach obserwowaliśmy szybujące w górę ceny robocizny, materiałów budowlanych i wykończeniowych. Piszą, że obecnie rynek nieco się…
Czytaj dalejStawianie murów i kluczowe decyzje projektowe Stawianie murów, choć pozornie techniczne, jest momentem, w którym warto wziąć pod uwagę wiele aspektów wpływających na przyszłe wnętrze domu. To tutaj fundamenty…
Czytaj dalejPierwsze wykopy: co nas zaskoczyło, a co warto przewidzieć? Ruszyliśmy z budową! Pierwsze wykopy już za nami, geodeta na działce, i… pierwsze zaskoczenie. Okazało się, że nasz teren skrywa więcej…
Czytaj dalejKluczowa Rola Praktycznych Rozwiązań W projektowaniu wnętrz funkcjonalność pełni rolę kluczową, tworząc spójne i użyteczne przestrzenie, które nie tylko zachwycają wzrok, ale również spełniają codzienne potrzeby mieszkańców. Funkcjonalne…
Czytaj dalejAż o 90% Zwiększasz swoje szanse na szybką realizację wymarzonego wnętrza, z poprawnie zorganizowanym procesem projektowym. Klarowna wizja Proces projektowy nadaje kierunek. Jego brak może to prowadzić do zamieszania,…
Czytaj dalejSkontaktuj się ze mną jeżeli chcesz, żeby Twoje wnętrze: Miało praktyczne rozwiązania, takie jak ergonomiczne układy mebli, optymalne rozmieszczenie pomieszczeń i odpowiednie przechowywanie Odzwierciedlało Twoje indywidualne preferencje i potrzeby…
Czytaj dalejZwiększasz swoje szanse na szybką realizację wymarzonego wnętrza, z poprawnie zorganizowanym procesem projektowym.









